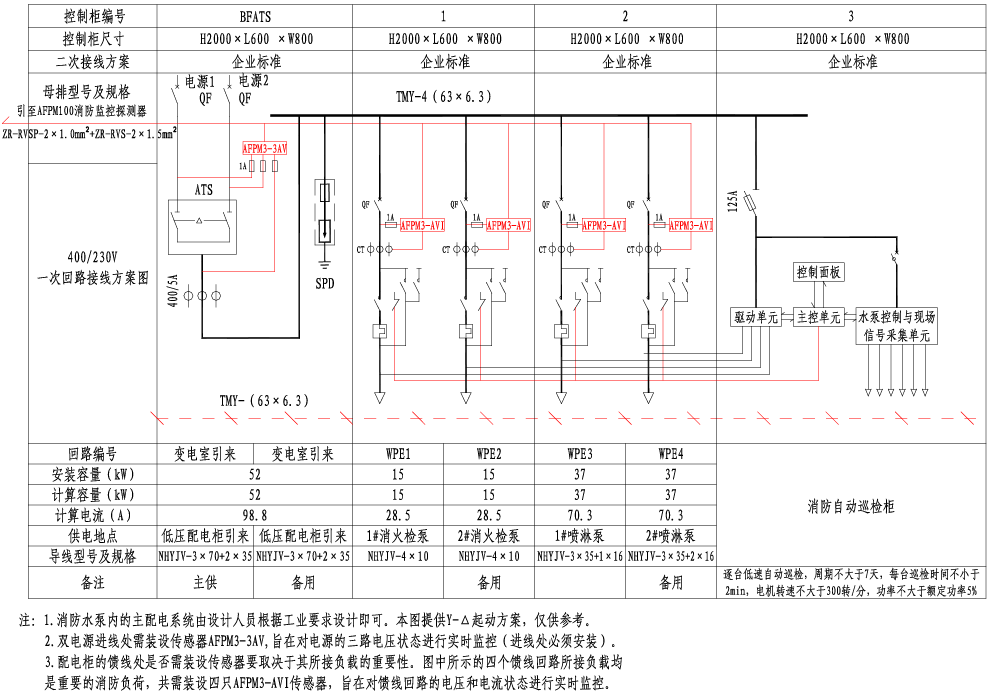
消防泵房低压配电系统图

客服1
客服2
客服3
客服4